• Projetos
  • Investigação
  • Novidades
  • Serviços
  • Equipa
  • Contactos
  • Projetos
  • Investigação
  • Novidades
  • Serviços
  • Equipa
  • Contactos

Recent Posts.

  • Hello world! Abril 6, 2020
  • Integrated Way of Working Abril 30, 2018
  • Yellow Block Building Abril 30, 2018
  • Solna Subway Station Abril 30, 2018
  • Our New Office Unveiled Abril 30, 2018
PdP
  • Projetos
  • Investigação
  • Novidades
  • Serviços
  • Equipa
  • Contactos

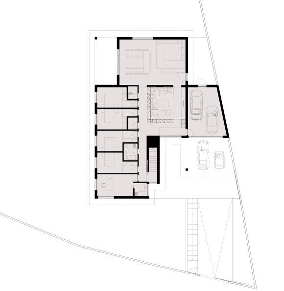
Moradia AA

Habitação Unifamiliar

Local: Aguçadoura, Póvoa de Varzim

Área de Intervenção: 420,00m2

Ano: 2019

O design da moradia procura tirar proveito de um terreno com uma pré-existência, localizado a curta distância do mar. O programa visa providenciar todas as comodidades necessárias a uma família alargada em contexto de férias. A volumetria resultante implanta-se no polígono da pré-existência, num esforço de minorar os impactes ambientais sobre as áreas naturais circundantes.

Os telhados, elementos morfotipológicos locais incontornáveis, serviram de mote à imagem da moradia. O complexo programa desenvolve-se essencialmente ao nível do rés-do-chão e em franco contacto com o exterior, em contraponto à simplicidade do refúgio proposto e autonomizado ao nível das águas furtadas.

Contactos
Novidades
Projeto Anterior
Projeto Seguinte
  • Facebook
  • LinkedIn
  • Instagram

© Copyright 2020  —  Website by 202studio